(株)畠山冷機工業所 不動産部
土地・建物売買、アパート・店舗・住宅賃貸の検索に便利な(株)畠山冷機工業所 不動産部
TOP物件検索マップ検索TOP新着物件お勧め物件お問合せ会社概要個人情報
Last Update 2026年03月16日
 
物件詳細情報

sale 戸建
新着物件

現状渡し 車庫あり

[sho424]大畑売家
花巻市大畑第1地割41番5



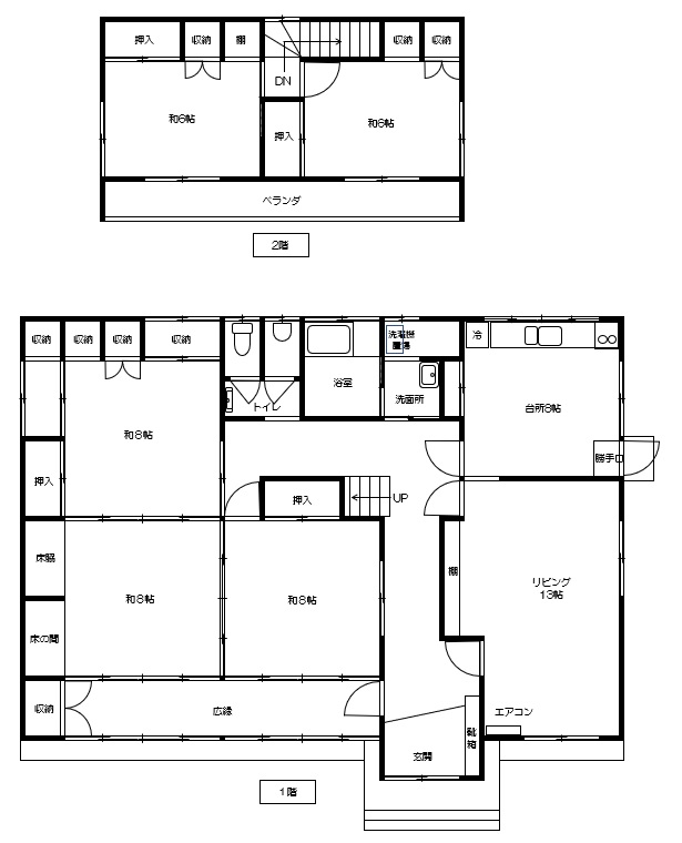
間取 6K 価格 500万円
間取詳細 和6・6・8・8・8・K6・洋13 共用施設負担金 無し
区画/私道負担 727.63u/私道負担無し 販売区画
建物階/建物面積 2階建/160.43u 建物構造 木造
駐車場 無し 建蔽率:容積率 60%:20%
地目 宅地    
交通手段 JR東北本線花巻空港駅から5.3km 築年月/完成予定 1977年3月
権利形態 所有権 国土法
引渡し日 相談 取引形態 仲介 仲介手数料:33万円
設備等
システムキッチン・・システムキッチン ユニットバス・・ユニットバス シャワー・・シャワー バス・トイレ別・・バス・トイレ別
洗面台・・洗面台 室内洗濯機置場・・室内洗濯機置場 バルコニー・・バルコニー 照明器具・・照明器具
火災報知器・・火災報知器 物置・・物置 専用庭・・専用庭 駐車場・・駐車場
その他 【都市計画等】都市計画区域内 非線引き 第1種住居 建60% 容200% 建築基準法第22条 大畑遺跡該当【接道】北東側/公道/幅員7.0〜8.5m/34m接す 東側/公道/幅員5.0m/18m接す【設備】電気(東北電力)水道(公営)排水(公共下水)ガス(プロパン)【その他】庭木・庭石含む 現況渡し 車庫倉庫あり 家財等は売主にて撤去いたします 和室一部修繕要
情報登録日 2026年03月13日 次回更新予定 随時




不動産.CGI©CopyRight Chama.ne.jp